Plaza Europa

Canfranc Estación

Diseño contemporáneo en el corazón del Pirineo

En Plaza Europa, en Canfranc-Estación, se desarrolla una promoción exclusiva de tres estudios con altillo, diseñados para quienes buscan una vivienda de montaña diferente: luminosa, funcional y con un estilo arquitectónico contemporáneo.
Cada vivienda ha sido concebida para aprovechar al máximo el espacio, combinando una planta abierta con un altillo que multiplica las posibilidades de uso.
El resultado es un hogar compacto pero sorprendentemente amplio, ideal tanto como segunda residencia en el Pirineo como para inversión en alquiler turístico.

Espacios abiertos, funcionales y llenos de luz

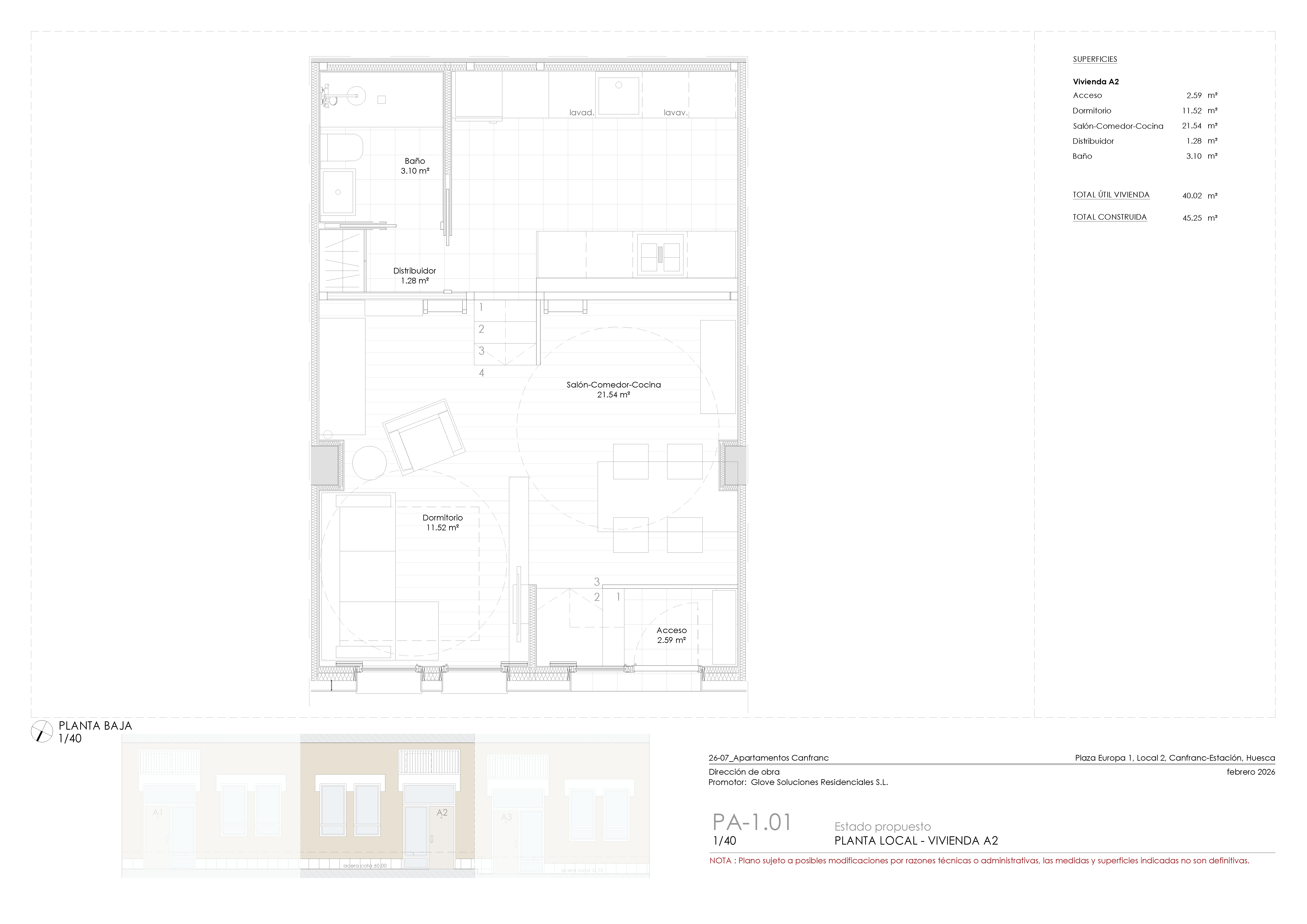
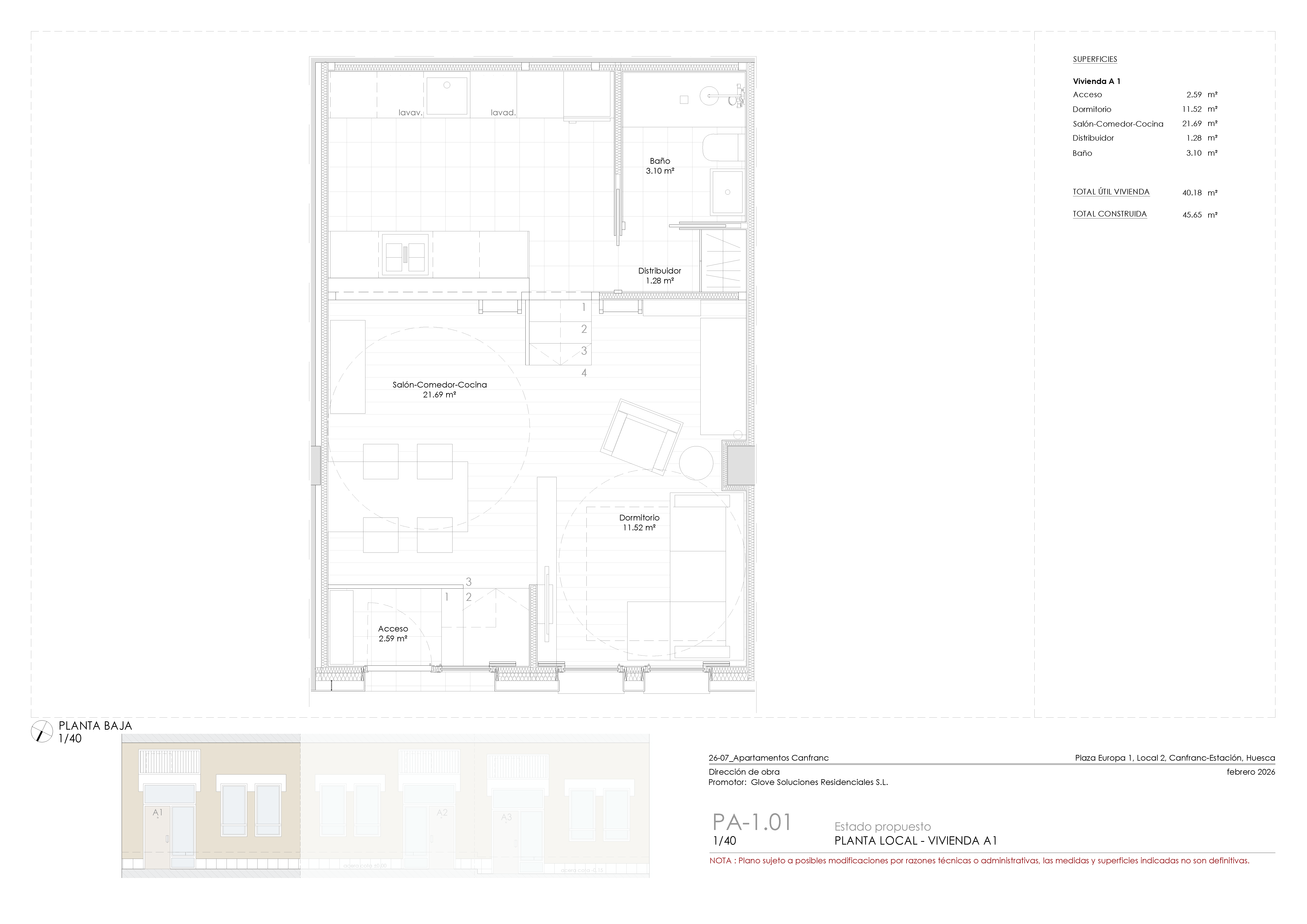
La planta principal se plantea como un gran espacio diáfano de salón-comedor con cocina integrada, que genera una sensación de amplitud poco habitual en viviendas de este tamaño.

A través de una escalera metálica de diseño con peldaños de madera, se accede al altillo, un espacio de aproximadamente 15 m² que puede utilizarse como:

  • Dormitorio doble principal
  • Zona de descanso o lectura
  • Espacio de trabajo
  • Área de almacenamiento adicional

La distribución final ofrece:

  • Salón–comedor–cocina en espacio abierto
  • Altillo de 15 m² utilizable como dormitorio doble
  • Baño completo con ducha
  • Superficie aproximada de 40 m² útiles en planta + altillo

Un concepto de vivienda inspirado en los lofts nórdicos, donde el diseño y la funcionalidad conviven con una estética cálida y minimalista.

Calidades pensadas para el confort

Las viviendas incorporan materiales duraderos y soluciones constructivas eficientes, pensadas para el clima de montaña.

Entre las características destacan:

Aislamiento y eficiencia

  • Cerramientos con termoarcilla y aislamiento de lana de roca
  • Ventanas de PVC con triple vidrio bajo emisivo
  • Excelente aislamiento térmico y acústico

Interiorismo contemporáneo

  • Suelo laminado AC5 resistente al agua
  • Escalera metálica con estructura negra
  • Barandillas de diseño en el altillo
  • Iluminación LED integrada

Cocina equipada

  • Mobiliario alto y bajo de gran capacidad
  • Encimera de madera
  • Electrodomésticos integrados: placa vitrocerámica, horno, microondas y campana

Baño completo

  • Plato de ducha extraplano con mampara
  • Mueble de baño con lavabo y espejo
  • Grifería monomando en acabado negro

Climatización

  • Sistema de bomba de frío y calor con split en salón y altillo

El resultado es una vivienda cómoda durante todo el año, tanto en invierno como en verano.

Vivir el Pirineo desde Canfranc

La promoción se sitúa en Plaza Europa, en Canfranc-Estación, uno de los enclaves más atractivos del Pirineo aragonés.
Un entorno perfecto para disfrutar de:

  • Esquí en Astún y Candanchú
  • Senderismo y montaña todo el año
  • Ciclismo, naturaleza y escapadas
  • La histórica Estación Internacional de Canfranc

Un lugar donde naturaleza, arquitectura e historia se encuentran.

Solo tres viviendas disponibles

Una promoción pequeña y exclusiva que ofrece una oportunidad única para adquirir una vivienda diferente en el Pirineo.
Perfecta para:

  • Segunda residencia de montaña
  • Inversión en alquiler turístico
  • Escapadas de fin de semana

Tres estudios. Un concepto de vivienda único en Canfranc.