Project Description
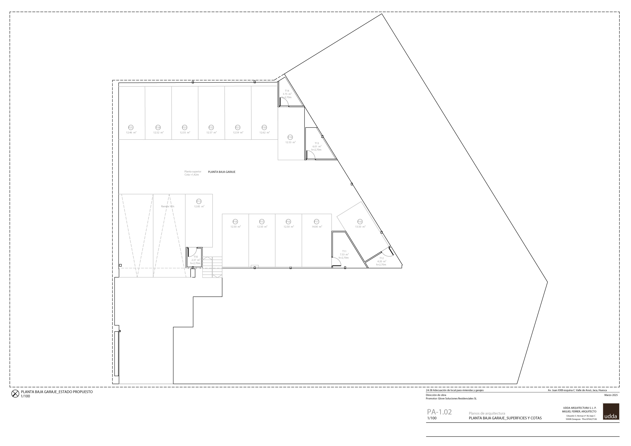
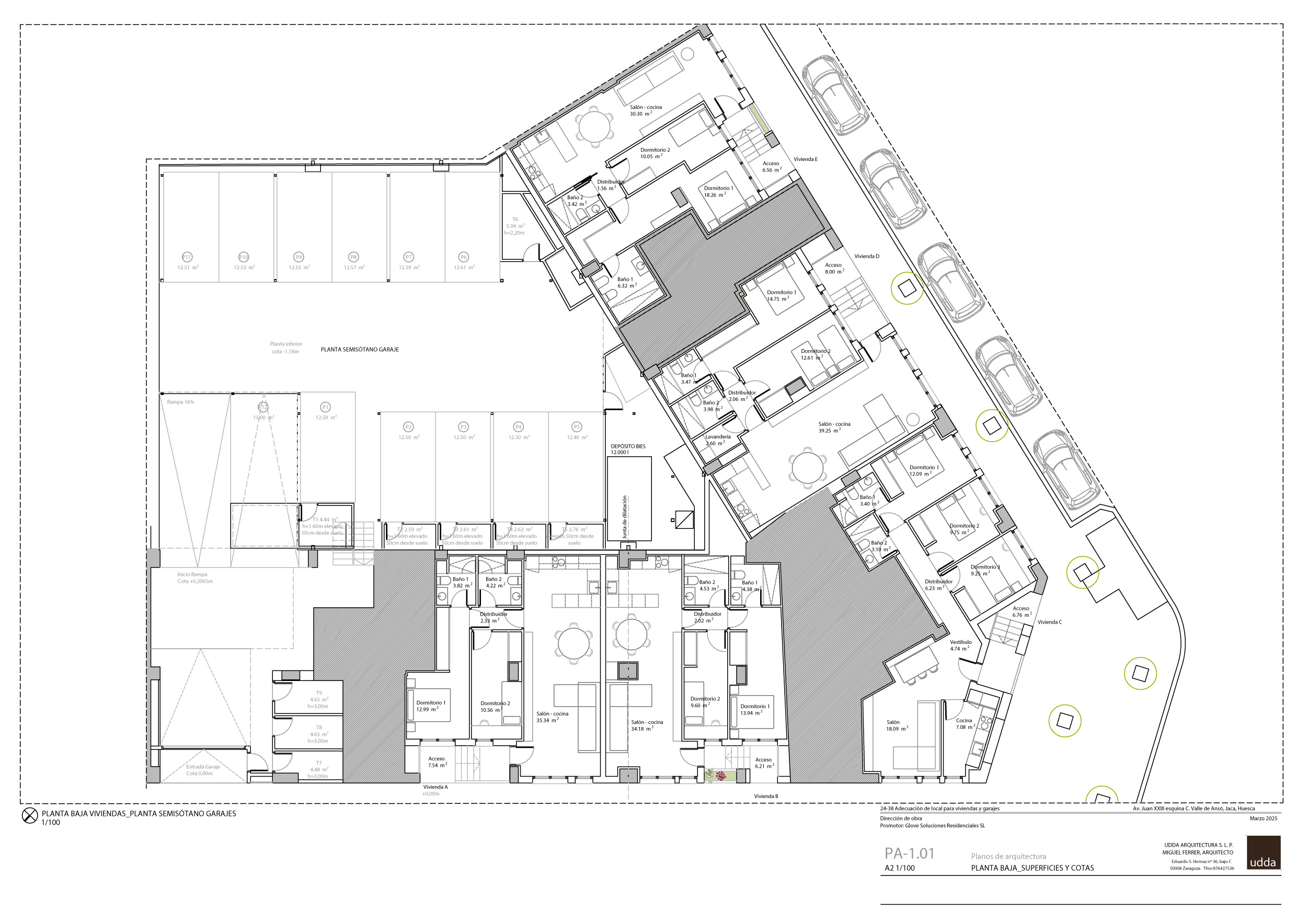
Proyecto de rehabilitación y cambio de uso de un local comercial a cinco viviendas, veinticinco garajes y catorce trasteros.
Viviendas:
Proyecto consistente en la construcción de cinco viviendas de obra nueva en planta baja, con salón/cocina, dos o tres dormitorios y dos baños, con superficies que van desde los 76,47 m2 a los 86,71 m2 útiles, con acceso todas ellas desde la calle. El forjado de las viviendas está levantado aproximadamente un metro por encima de la acera de la calle.
Garajes y trasteros:
En la parte interior del local, que actualmente es una nave industrial hay planteados 25 plazas de garaje y 14 trasteros, desarrollados en dos plantas y con acceso desde la calle Juan XXIII.
Distribuciones y acabados personalizables según estado de ejecución de las obras.
¡Infórmese, se sorprenderá!




