Project Description
Promoción de Trasteros en Paseo Sagasta 32 – 38
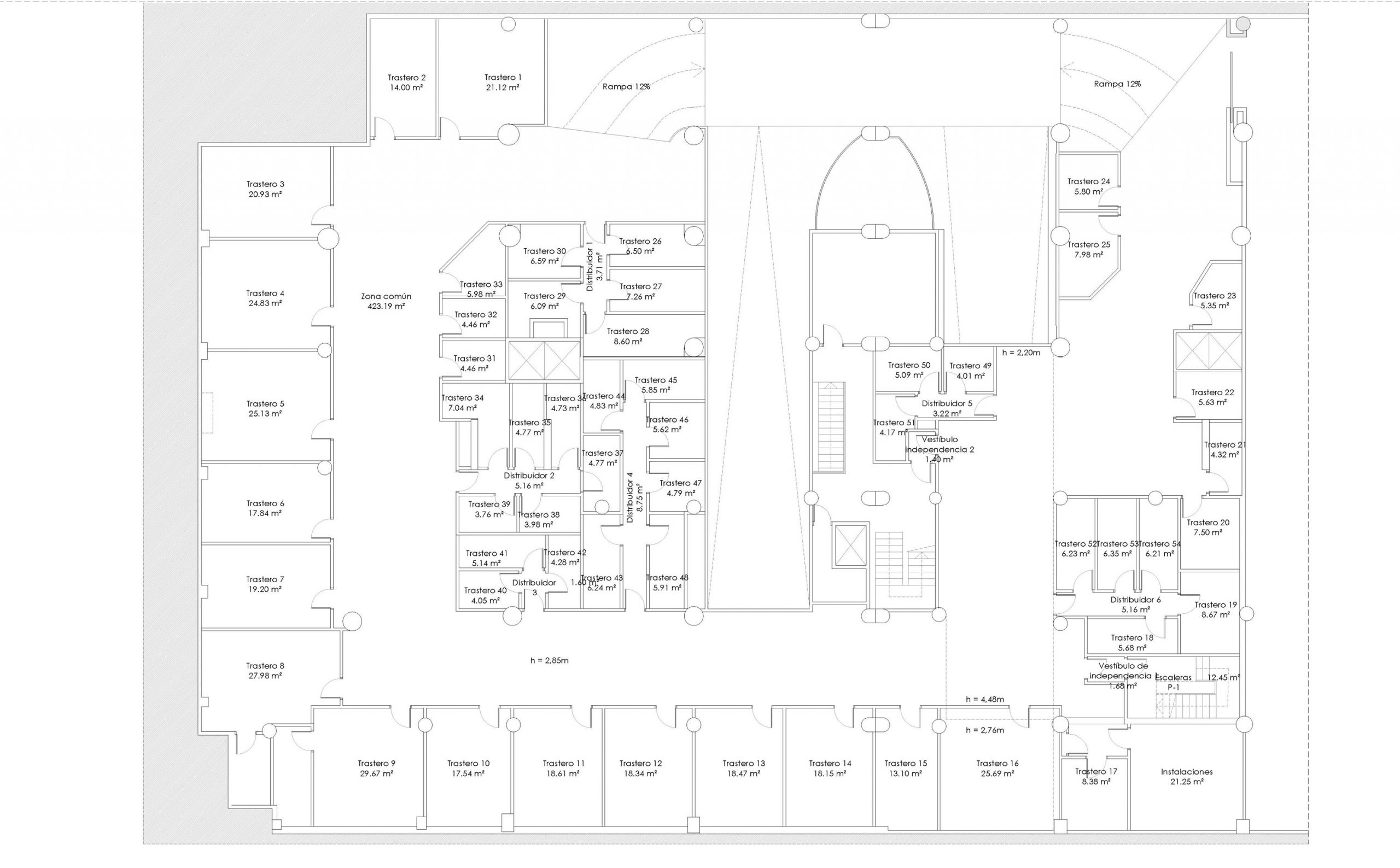
Promoción de 54 trasteros en planta -1 del edificio en Paseo Sagasta nº 32-38, con acceso por la Calle Gil de Jasa.
- Acceso peatonal desde la calle, a través de escaleras, y rodado a través de la rampa de garaje comunitaria, lo que permite la carga y descarga de enseres y objetos desde el propio vehículo, estacionando en la misma puerta del trastero.
- Acceso 24 horas.
- Los trasteros tienen superficies que van desde los 4,05 m2 a 29,67 m2, y su altura, según trasteros, es de 4,40 metros o 2,80 metros.
- Financiación a medida.



