Project Description
Proyecto de rehabilitación y cambio de uso de un local comercial a tres viviendas en la ribera del Ebro.
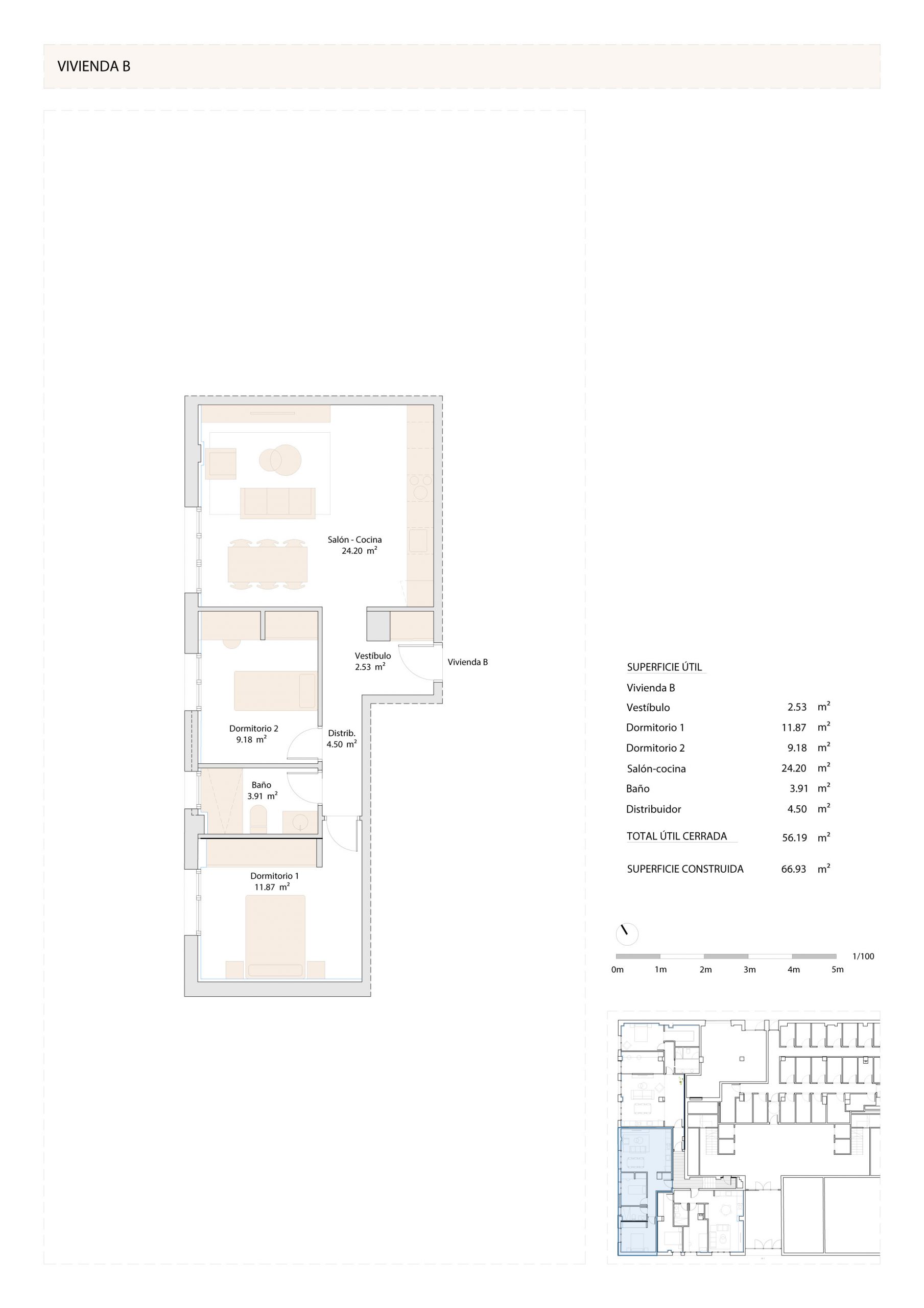
Tres viviendas de obra nueva en planta baja, con salón/cocina, dos dormitorios y un baño, con superficies que van desde los 64,48 m2 a los 94,59 m2 construidos, en la misma ribera del Ebro, junto al azud. El forjado de las viviendas está levantado un metro por encima de la acera y el acceso a las mismas es por el zaguán de la Comunidad de Comuneros de Castilla nº 7.
Además, la trabajada tipología y las excelentes dimensiones de las estancias y sus alturas permiten que la luz natural sea protagonista y proporcione un ambiente óptimo y agradable.
- Precios desde 109.465,00 Euros más IVA.
- Distribuciones y acabados personalizables según estado de ejecución de las obras.
¡Infórmese, se sorprenderá!


