Project Description
Proyecto de rehabilitación y cambio de uso de un local comercial a dos viviendas singulares en la calle Aljafería nº5 de Zaragoza.
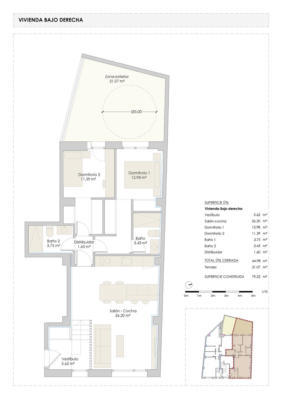
Promoción de dos viviendas de obra nueva de dos dormitorios, en la calle Aljafería nº 5, junto al palacio y parque de la Aljafería, paseo María Agustín y Plaza Europa.
A las viviendas se accede por el portal del edificio y constan de salón cocina de aproximadamente 25 m2, dos amplios dormitorios, uno de ellos de casi 20m2, dos baños y terraza exterior de aproximadamente 20 m2. Cocina amueblada, baños completamente equipados y armario empotrado en el dormitorio principal.
El forjado de las viviendas se encuentra a un metro de altura con respecto a la calle y las ventanas arrancan a más de dos metros de altura de la calle.
La trabajada tipología y las excelentes dimensiones de las estancias, permiten que la luz natural sea protagonista y proporcione un ambiente óptimo y agradable.




