Project Description
Proyecto de rehabilitación y cambio de uso de un local comercial a tres viviendas singulares en la calle La Salud nº 9, barrio de La Paz, Zaragoza.
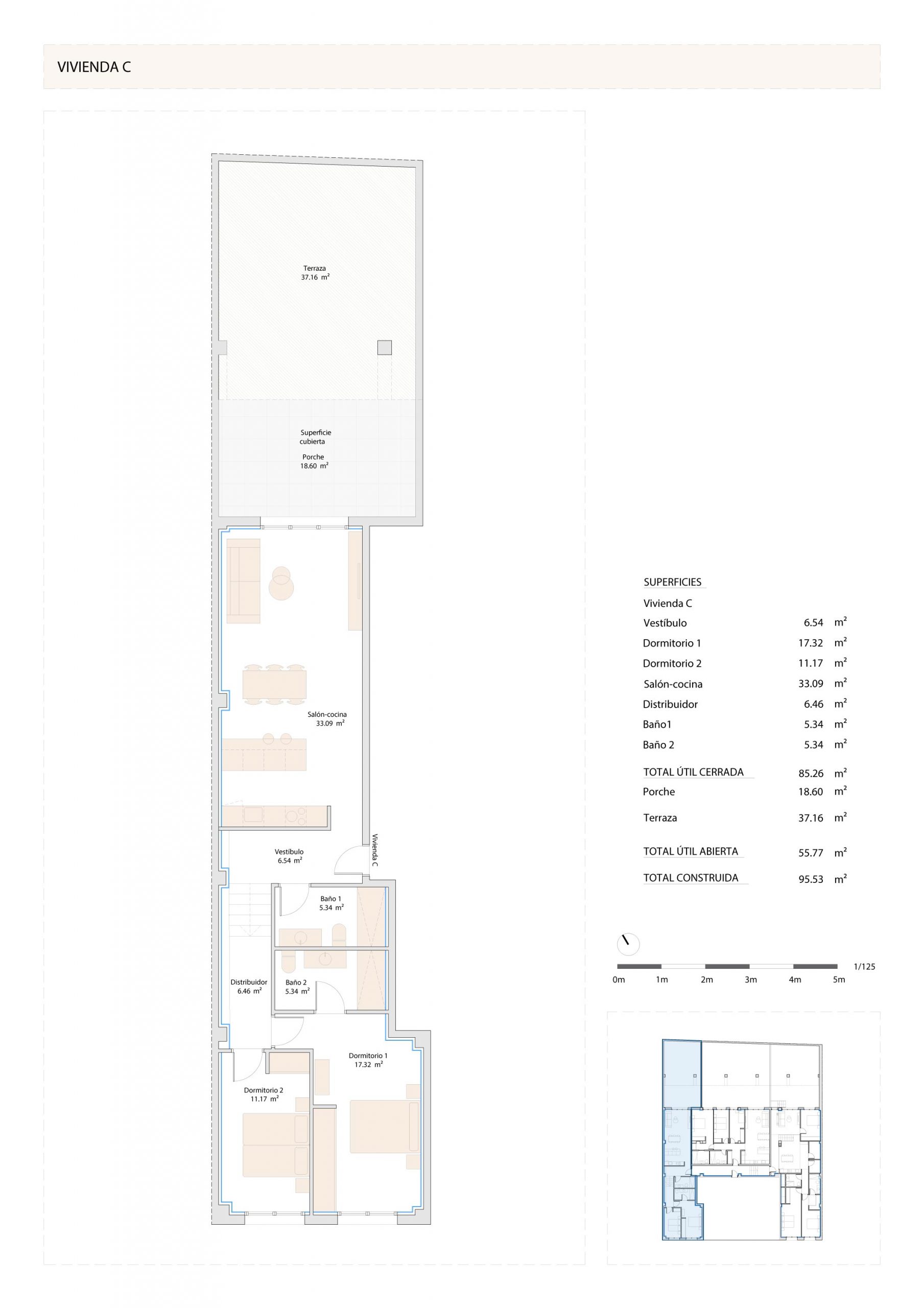
Viviendas de obra nueva de dos y tres dormitorios, con porche y gran terraza privada, en la calle La Salud nº 9, en uno de los barrios más tranquilos y de mayor proyección de Zaragoza.
Viviendas que van desde los 85,64 m2 útiles a los 120,37 m2 útiles, todas con grandes porches y terrazas de hasta 80 metros cuadrados. A las viviendas se accede por el portal del edifico y todas ellas tienen una distribución moderna y funcional, con grandes espacios para vivir y disfrutar de la vivienda y de sus terrazas privadas.
Además, la trabajada tipología y las excelentes dimensiones de las estancias y sus alturas permiten que la luz natural sea protagonista y proporcione un ambiente óptimo y agradable.
- Distribuciones y acabados personalizables según estado de ejecución de las obras.
¡Infórmese, se sorprenderá!


