Saltar al contenido

Glove | Transformación de locales en Trasteros, Garajes y Viviendas en Zaragoza

Monterregado

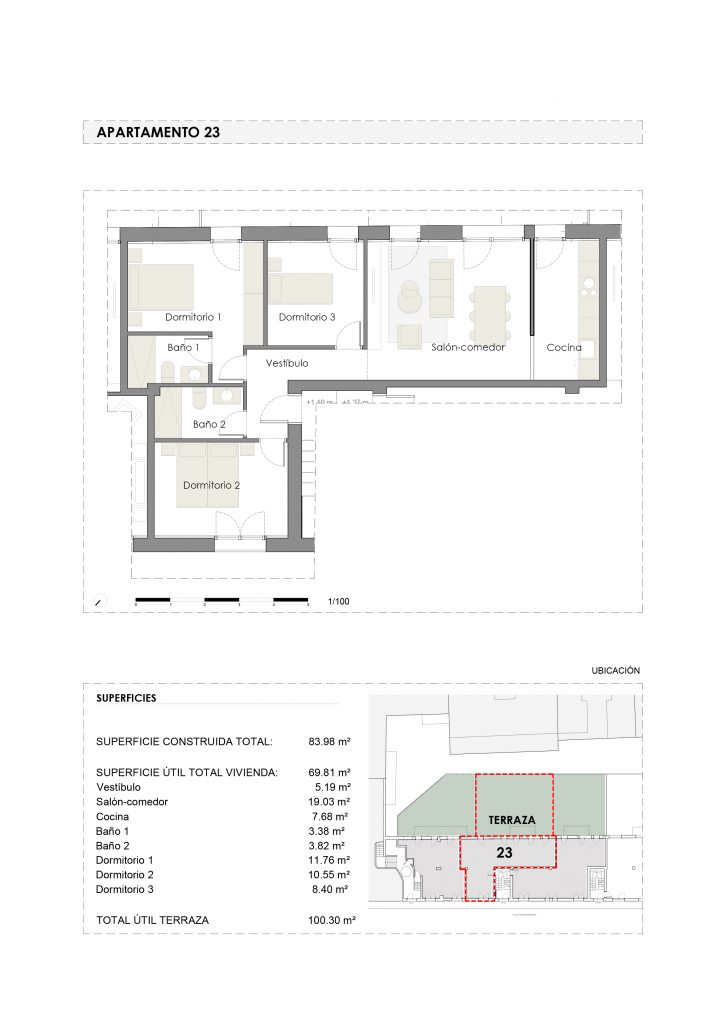
Proyecto de rehabilitación y cambio de uso de un local comercial a tres viviendas en la calle Monterregado de Zaragoza.

Licencia de obras del Ayuntamiento de Zaragoza de fecha 22 de julio de 2020. Por las características particulares de local, que posee el uso y disfrute del patio de luces del inmueble que puede ser destinado a jardín o terraza, se han planteado tres viviendas orientadas a la venta, dos de tres habilitaciones y una de dos habitaciones, con una espectacular terraza de más de 100 m2 en cada una de ellas. Cumpliendo la normativa urbanística el acceso a las viviendas es por el zaguán comunitario y los forjados de las viviendas están a un metro por encima del nivel de la calle. Las tres viviendas ya están vendidas.

El proyecto se inició en marzo de 2020 y la viviendas se entregarán a sus compradores en diciembre del 2020.

Etiquetas: