Saltar al contenido

Glove | Transformación de locales en Trasteros, Garajes y Viviendas en Zaragoza

Luis Sallenave nº 11

Proyecto de rehabilitación y cambio de uso de un local comercial a una espectacular vivienda en la calle Luis Sallenave nº 11 – Zaragoza.

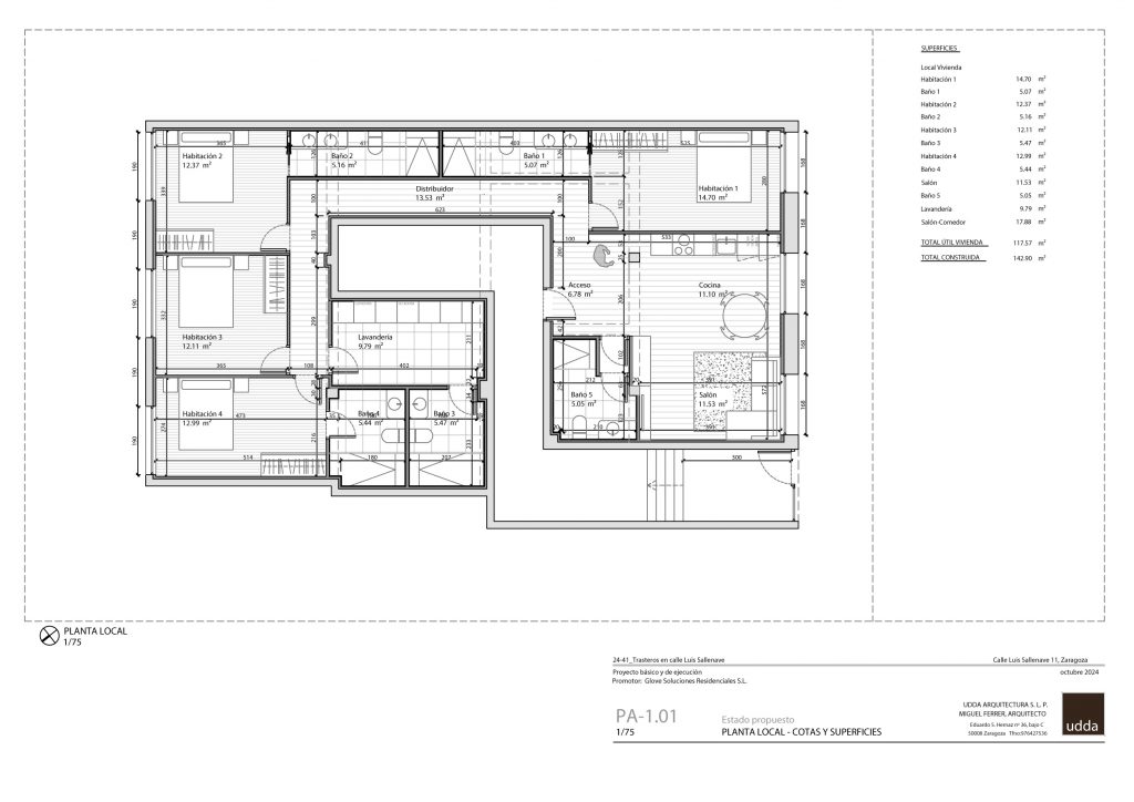
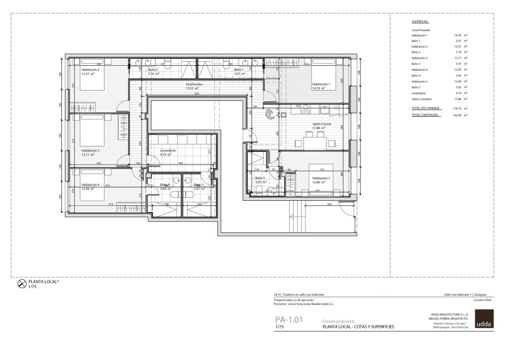
Vivienda de obra nueva de 142 m2, de cinco dormitorios, cinco baños, salón cocina  y zona de lavandería, sita en la calle Luis Sallenave nº 11, pegada a Paseo Cuellar y al parque Pignatelli y muy cerca del Campus de la Universidad de Zaragoza.

El acceso de la vivienda está planteado por el portal del edificio y en ella podemos disfrutar de cinco amplias habitaciones, cada una de ellas con su baño privado. Todas las habitaciones tienen luz natural, lo que les proporciona un ambiente óptimo y agradable.

Proyecto ideal para inversores que buscan viviendas para alquiler de habitaciones. La vivienda se entrega totalmente terminada y legalizada. Posibilidad de modificar la distribución planteada en función del momento en que se encuentre la ejecución de la obra.

Solicite más información y le daremos todos los detalles que necesita para la elección de su nueva inversión o vivienda.

Los planos no son contractuales.

Etiquetas: