Saltar al contenido

Glove | Transformación de locales en Trasteros, Garajes y Viviendas en Zaragoza

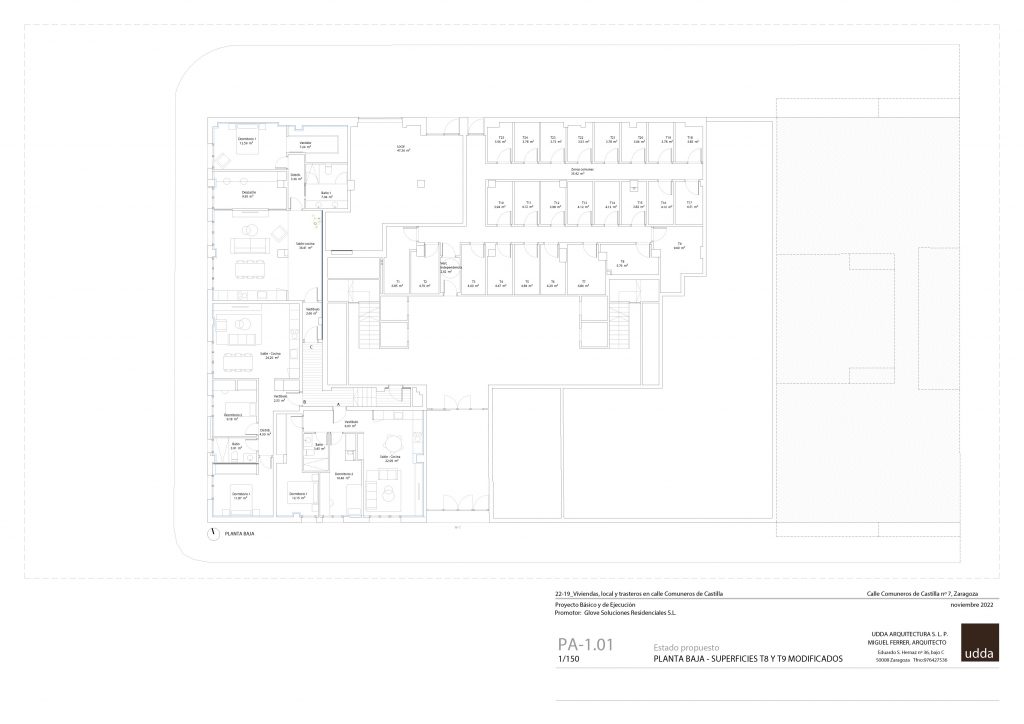
Comuneros de Castilla 7

Promoción de 25 trasteros para la venta en un local de planta baja.

El proyecto consta de 25 trasteros, con superficies que van desde los 3,64 m2 a los 9,64 m2. La zona de trasteros tendrá dos entradas, una desde el zaguán de la comunidad de Comuneros de Castilla 7 y la otra desde la Avenida Echegaray y Caballero.

Para su desarrollo se cuenta con licencia del Ayuntamiento de Zaragoza y las unidades inmobiliarias resultantes se inscribirán en el Registro de la Propiedad como fincas independientes.

  • Precios desde 5.200 euros mas IVA
  • Fecha prevista de entrega: Febrero de 2023

¡Infórmese, se sorprenderá!

Etiquetas: